Home
Projects
Testimonials
Process
Contact
Home
Projects
Testimonials
Process
Contact
Scudder Rd. Osterville Renovation
After
Before
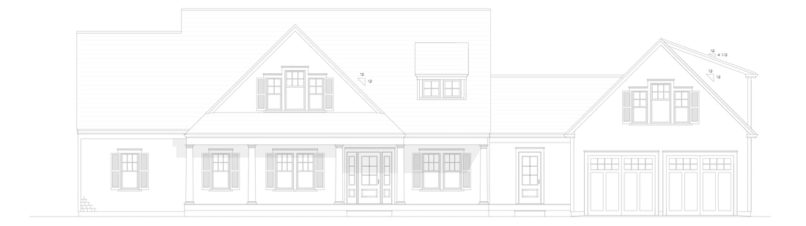
Front Elevation
Rear Elevation