Home
Projects
Testimonials
Process
Contact
Home
Projects
Testimonials
Process
Contact
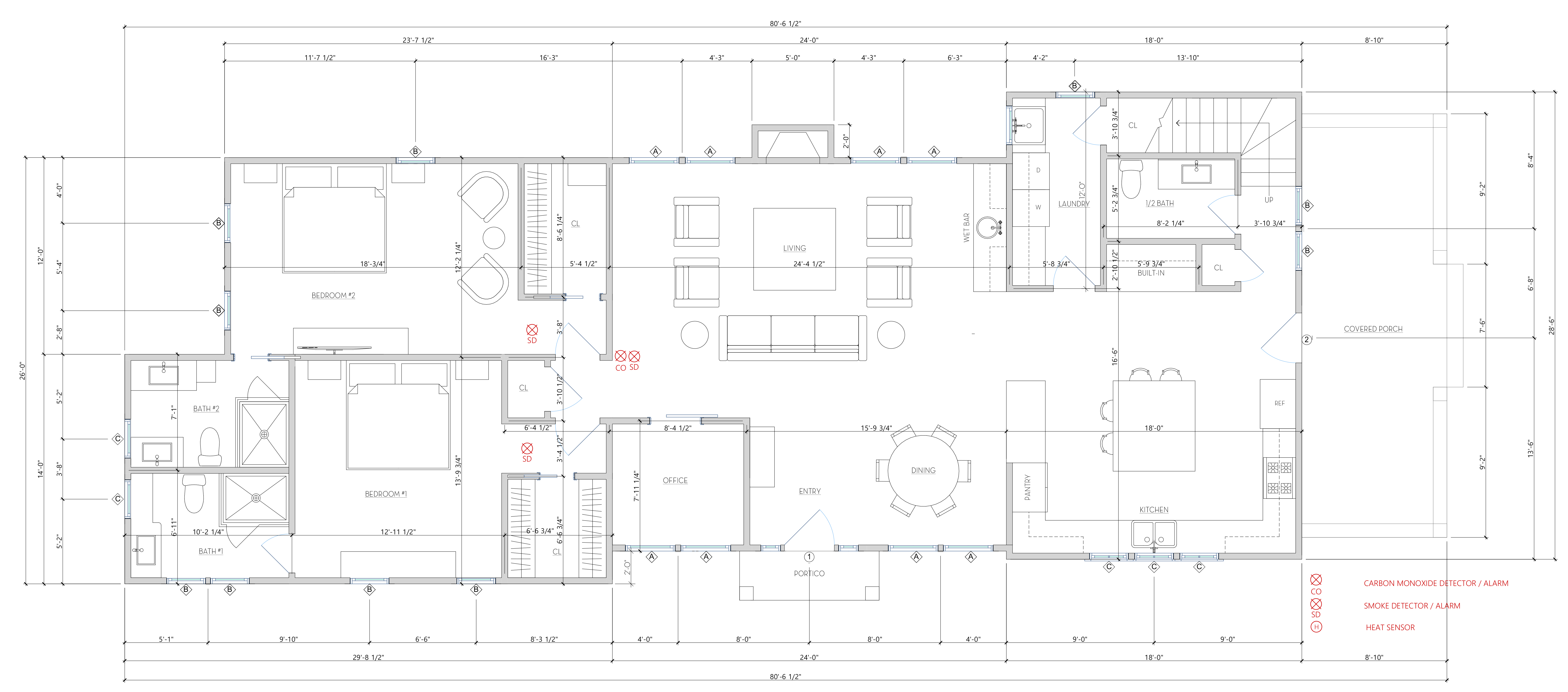
Addition / Renovation – Centerville