Home
Projects
Testimonials
Process
Contact
Home
Projects
Testimonials
Process
Contact
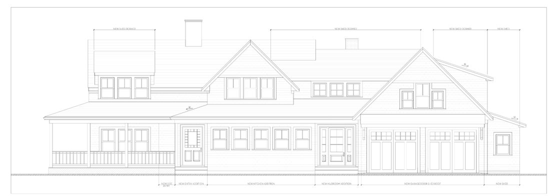
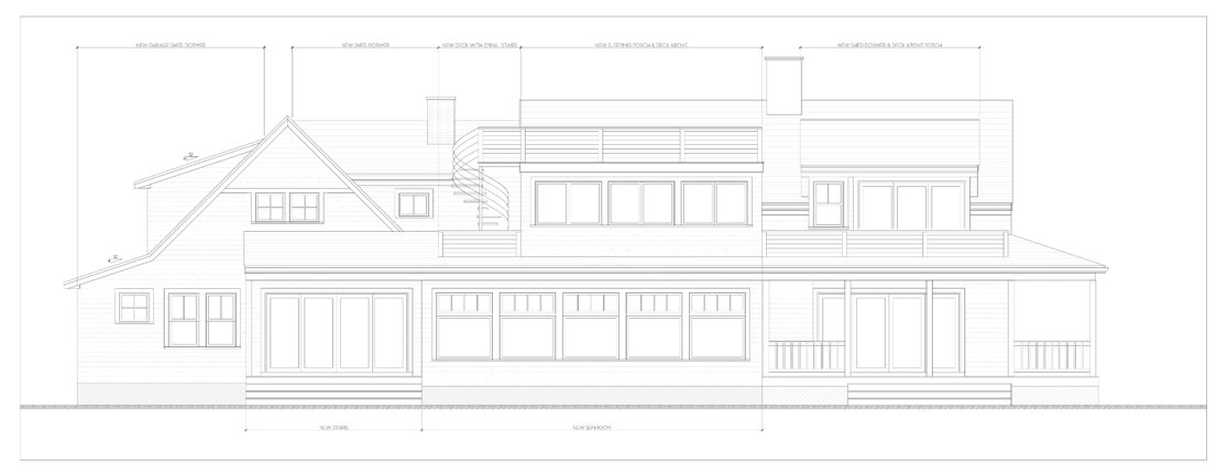
Deacon Circle – Barnstable Renovation